自力式壓差控制閥產品概述: |
ZYC自力式壓差控制閥是用開閉式水循環系統(如熱水供暖系統、空調冷凍水系統等)的一種自力式調節閥,它的作用是被控環路出現外擾(網路的壓力波動)和內擾(內部阻力的改變)時,使被控環路的壓差保持恒定,適用于供暖方式采用雙管系統的壓差控制,保證系統穩定,降低噪音,平衡阻力,消防熱網和水力失調。無論是網路壓力出現波動,還是被控環路的阻力發生變化,ZYC型自力式壓差控制閥均可維持施加與被控環路的壓差恒定。
自力式壓差控制閥適用范圍: |
城建、化工、冶金、石油、制藥、食品、飲料、環保
自力式壓差控制閥技術參數: |
①公稱壓力:1.6MPa
②殼體試驗壓力:2.4MPa
③適用介質:水、油等非腐蝕性液體
④介質溫度:0—100℃
⑤壓力差控制范圍:定壓差型10Kpa、20Kpa、30Kpa
⑥法蘭標準:GB/T 17241.6 GB/T 9113
⑦實驗標準:GB/T 13927 API598
自力式壓差控制閥零部件材料: |
①閥體:銅、鑄鐵、灰鑄鐵、鑄鋼
②閥桿:不銹鋼
③閥瓣:鑄銅
④膜片:丁腈橡膠
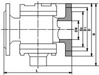
自力式壓差控制閥外形尺寸: |

DN(mm) | 連接方式 | L(mm) | H(mm) | 流量(m3/h) | |
定壓差型 | 可調壓差型 | ||||
15 | 螺紋 | 110 | 95 | 145 | 0.2-1 |
20 | 110 | 110 | 150 | 0.3-1.5 | |
25 | 115 | 130 | 165 | 0.5-2 | |
32 | 法蘭 | 130 | 140 | 190 | 1-4 |
40 | 200 | 190 | 340 | 1.5-6 | |
50 | 215 | 205 | 355 | 2-8 | |
65 | 230 | 240 | 390 | 3-12 | |
80 | 275 | 300 | 500 | 5-20 | |
100 | 290 | 350 | 550 | 10-30 | |
125 | 310 | 380 | 580 | 15-45 | |
點擊查看